New Projects

Explore our latest projects, featuring detailed drafts and realistic renders that showcase each design through both day and night perspectives.

New Projects

Explore our latest projects, featuring detailed drafts and realistic renders that showcase each design through both day and night perspectives.​

Luxury Duplex House

30 Karrinyup Rd, Trigg WA 6029, Australia

A high-end coastal modern contemporary duplex in Trigg, Western Australia. Each residence features five spacious bedrooms, five designer bathrooms, a private cellar, a two-car garage, and a resort-style pool with a fully appointed pool house.

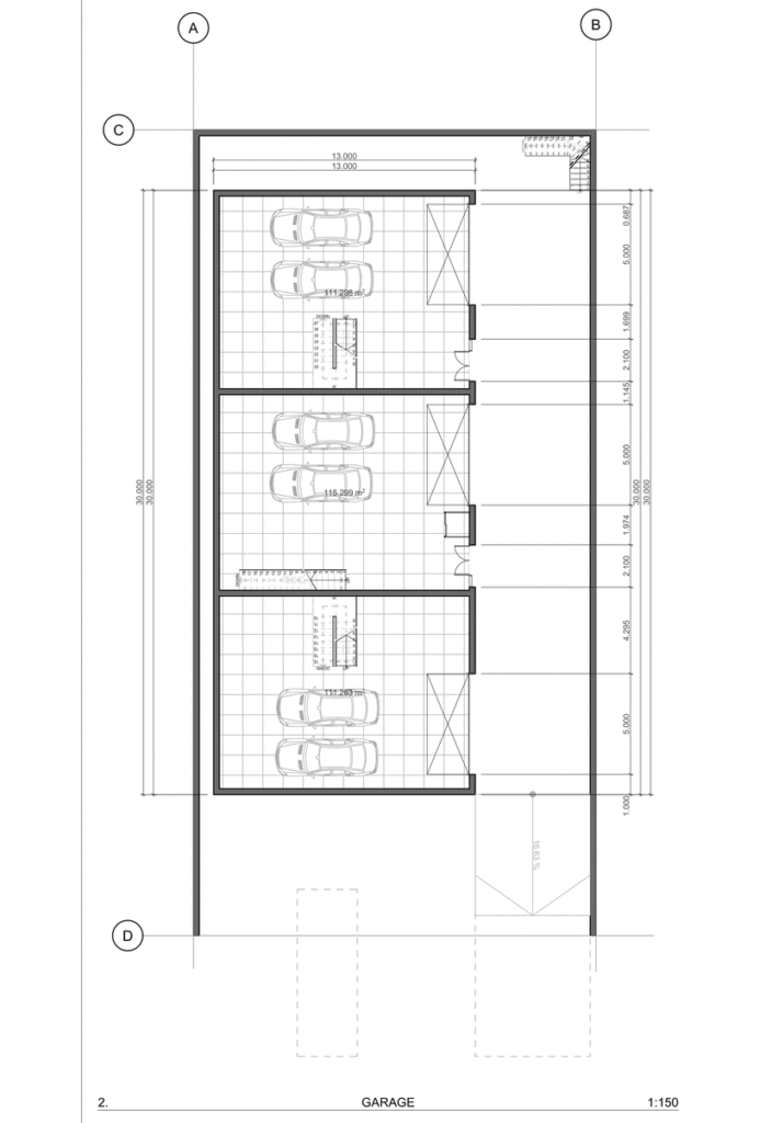
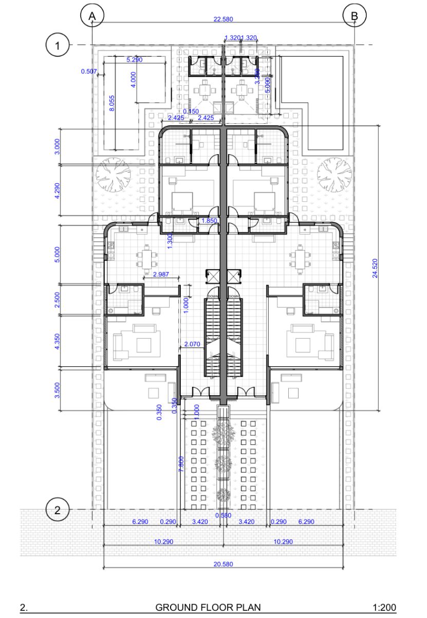
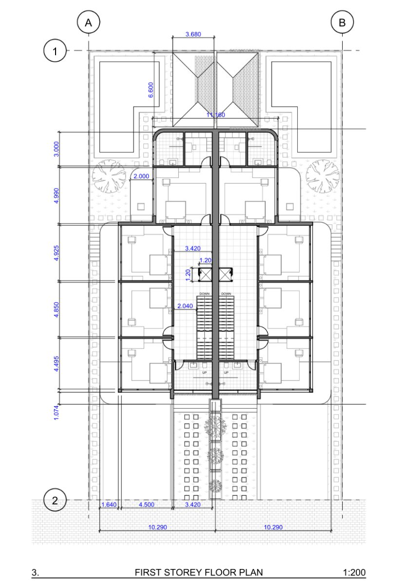
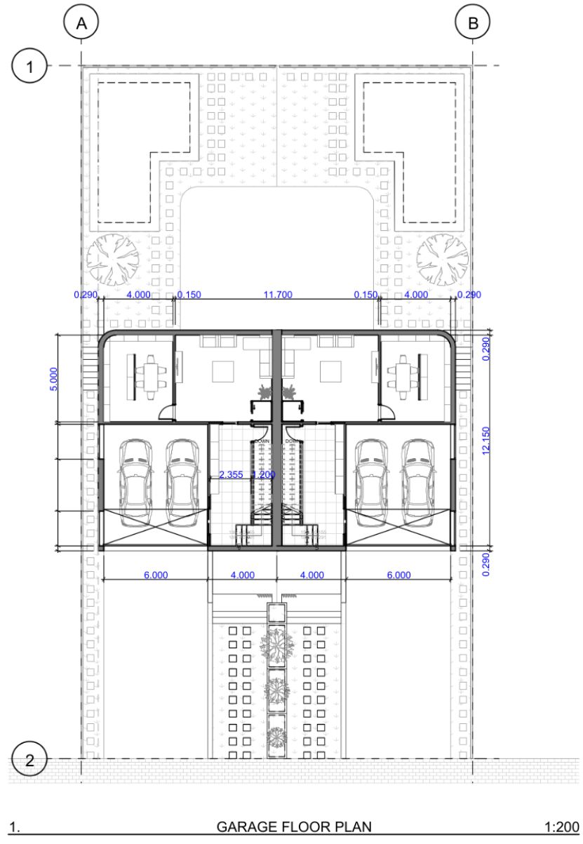
Thoughtfully designed layout, including the garage, ground floor, and firststorey floor plans, showcasing the smart spatial planning behind this luxury coastal duplex.

The elevation design blends modern coastal style with clean lines, large windows, and soft curves that give the duplex a relaxed yet sophisticated presence. The balanced layout and vertical features add depth and character, creating a home that feels both luxurious and welcoming.

A stunning pool view complemented by a fully appointed pool house, creating a private resort-style retreat perfect for relaxing and entertaining.

Elegant Living Space

A contemporary living area designed with soft neutral tones and a warm, cozy atmosphere that instantly makes anyone feel at home. Floor to ceiling glass doors and vertical timber screens create a seamless connection between the indoor lounge and the outdoor terrace, enhancing the calm, coastal-inspired atmosphere.

Effortless Modern Interior

Warm tone, natural light, and soft textures create a welcoming space designed for everyday comfort. Large windows connect the kitchen and dining area to the outdoors, bringing a calm and relaxed atmosphere into the heart of the home.

Serene Bedroom Escape​

Clean design, and soft neutral tones create a bedroom that feels calm and inviting. Expansive glass opens the space to natural light and garden views, blending indoor comfort with the outdoors.

Timeless Hallway Entry

A welcoming entry that feels calm and refined. The open hallway leads seamlessly into the living space, setting the tone for relaxed modern living.

6 Units Luxury Apartment

28 Russell Street, Morley WA

A glimpse of this modern 6-unit luxury apartment project with smart urban use of space in Morley, Western Australia. Thoughtfully planned layouts, generous living areas, and contemporary design come together to create comfortable and stylish residences.

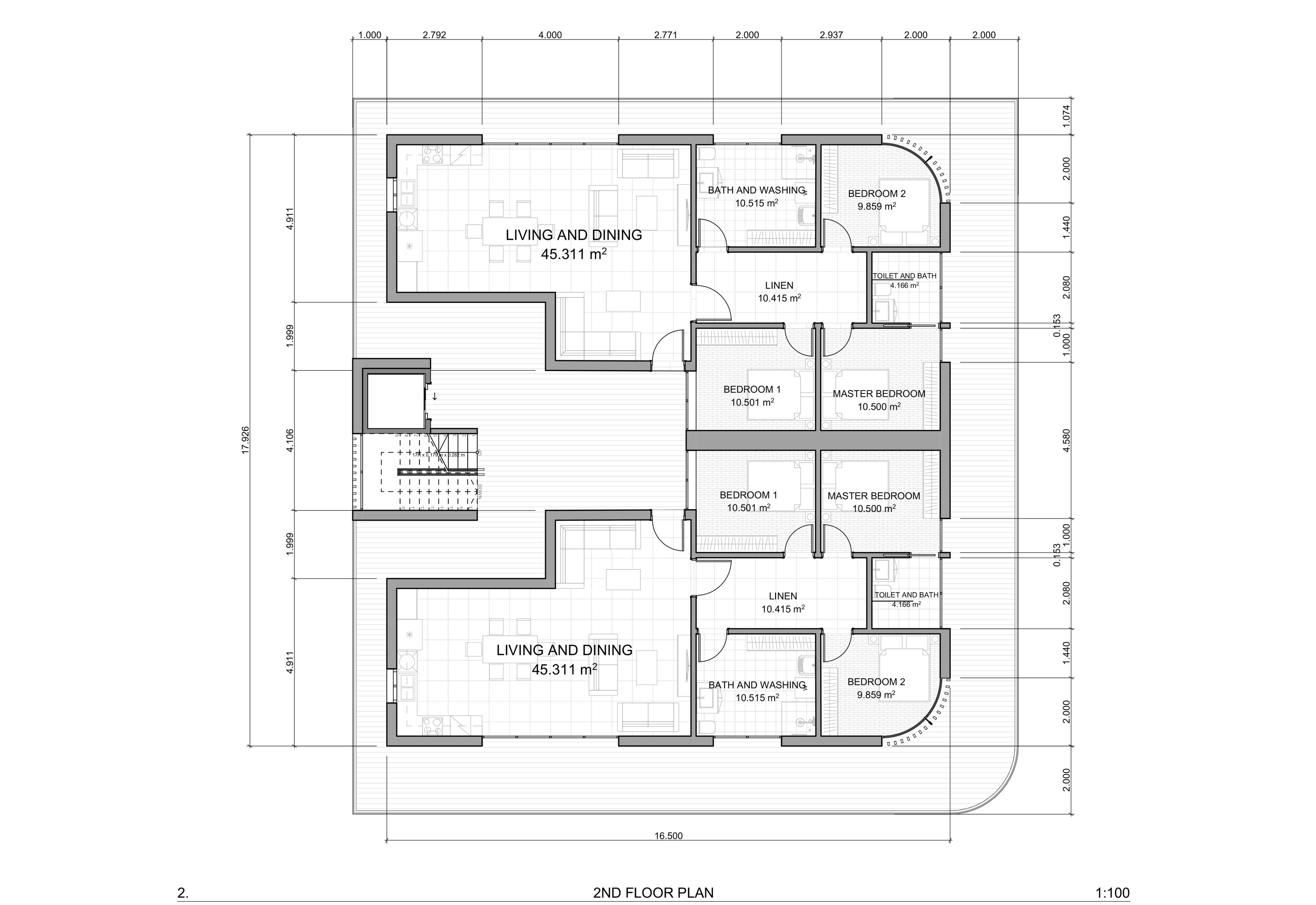
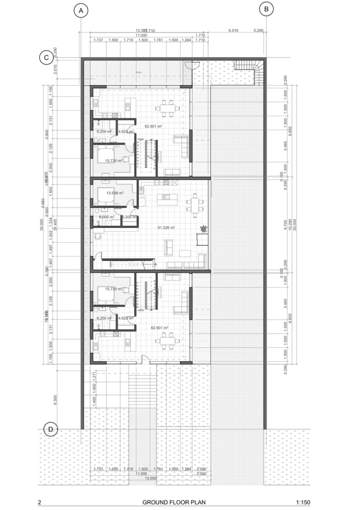
The floor plan has been thoughtfully designed, with open-plan spaces, generously proportioned bedrooms, and smart layouts that just make everyone feel right at home.

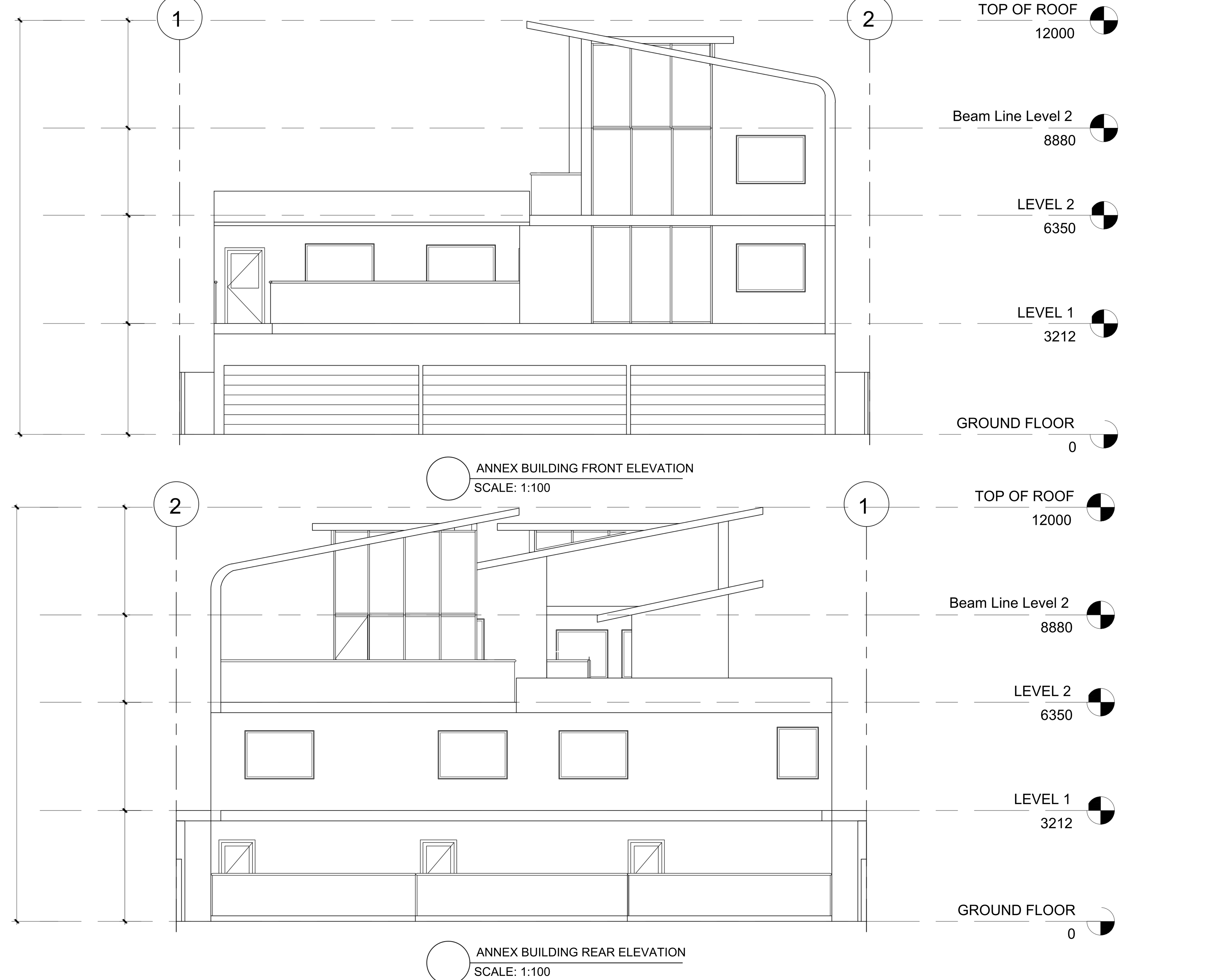
A well-crafted main building front and rear elevation, along with the annex, highlights the structure of the modern design, featuring a dynamic sloping roof that gives the building a distinctive identity and allows it to truly stand out in Morley.

Modern Annex Design

A sleek multi-level annex design in Morley featuring expansive glazing, warm timber accents, and bold architectural lines. Designed to maximise space, light, and modern luxury while blending seamlessly with the main residence.

Aerial Drone View

A contemporary six-unit luxury apartment development, featuring a striking main building and complementary annex building that stand out prominently within the surrounding residential streetscape.

Luxury Triplex House

A luxury triplex house in Western Australia, designed with 3 bedrooms, 3 bathrooms, spacious living areas, and a private 2-car garage in each home. Thoughtfully crafted spaces and a beautiful shared pool create the perfect balance of privacy, lifestyle, and community.

The floor plan is thoughtfully designed to create a smooth flow between private and shared spaces, maximizing comfort, and modern style which most Australians are looking for.

This elevation design in different angles was thoughtfully crafted around the client’s vision and style, this design brings their dream luxury triplex one step closer to becoming reality. Thoughtfully crafted around the client’s vision and style, this design brings their dream home one step closer to becoming reality.

Evenings just feel different when home looks like this. With warm lighting, a calm poolside setting, and beautifully designed spaces, this luxury home turns every night into a quiet, cozy retreat.

5 Unit Apartment with Shops

65 Second Ave Mount Lawley, Western Australia

A fresh 5-unit apartment with ground-floor shops coming to Mount Lawley at 65 Second Ave, designed warm timber finishes, and a modern street presence that really catches the eye. With a great mix of lifestyle living and local retail, it’s the kind of development that will naturally stand out in the neighbourhood.

Smartly designed floor plan, maximizing space, light, and rental potential in one efficient layout. A modern, highly functional floor plan that investors and residents will instantly love. It’s compact, practical, and built for people who want convenience and style

A clean, layered elevation design and warm finishes gives the building a modern look that naturally draws attention. It’s a simple but striking design that adds character and a fresh presence to Mount Lawley.